Stor indhegnet plads med belægnings sten.
Ejendom med mange anvendelsesmuligheder.
Er pt. indrettet til autohus. 8 nagelfaste lifte medfølger. Olieudskiller.
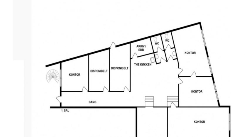
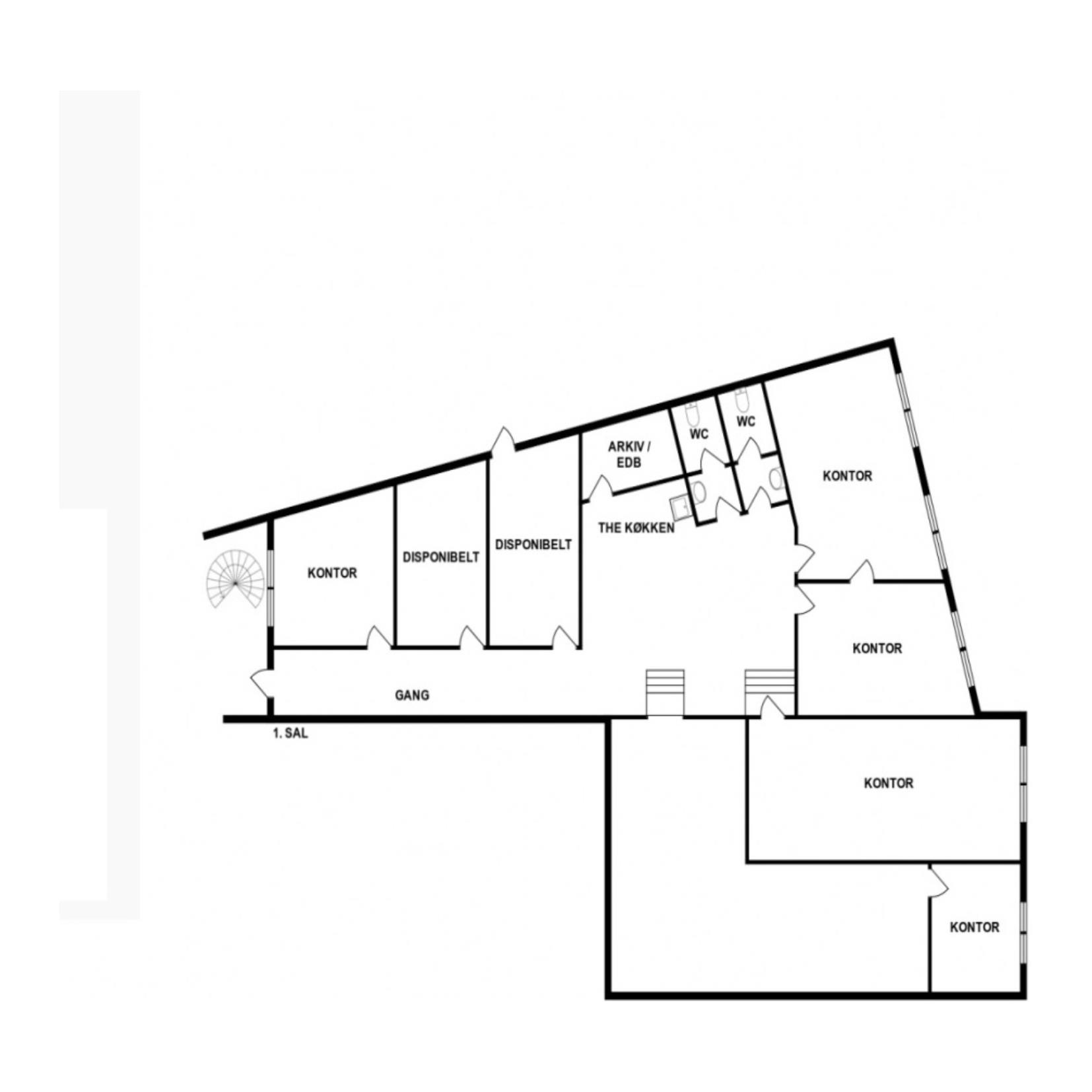
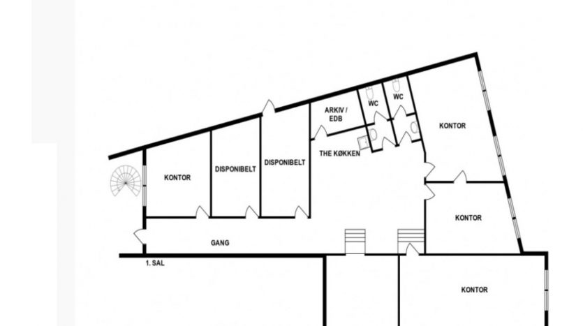
Ejendommen er indrettet med præsentabelt udstillingsområde med klinker samt værksteder med porte og i alt 8 nagelfaste lifte, som medfølger. Derudover køkken/spisestue, omklædningsrum, bruseafd. samt toiletkerner og administration/kontor. Se gerne plantegningen på side 7.
Derudover er der udnyttet tagetage på 100 m2 som er indrettet til opbevaring/arkiv mv.
Ejendommen er beliggende i attraktivt erhvervsområde i den sydlige del af Frederikssund hvor der er samlet en del autohuse og andre erhvervsvirksomheder.
Frederikssund er et attraktivt sted at drive erhverv og har en meget aktiv og dynamisk erhvervsforening.
Frederikssund Kommune har en god infrastruktur samt bus- og togforbindelser til de fleste byer, herunder direkte S-togsforbindelse til København og er koblet på supercykelstisystemet i hovedstadsområdet.
Området er blevet styrket med en ny højbro til Hornsherred og en omfattende udvidelse af tilkørselsforholdene.
Det forventes også, at den nuværende Frederikssundmotorvej som starter ved Motorring 3 i Rødovre, bliver forlænget helt til Frederikssund.


